0
Skip to Content
HOLSCHER studio
home
Open Menu
Close Menu
HOLSCHER studio
home
Open Menu
Close Menu
home
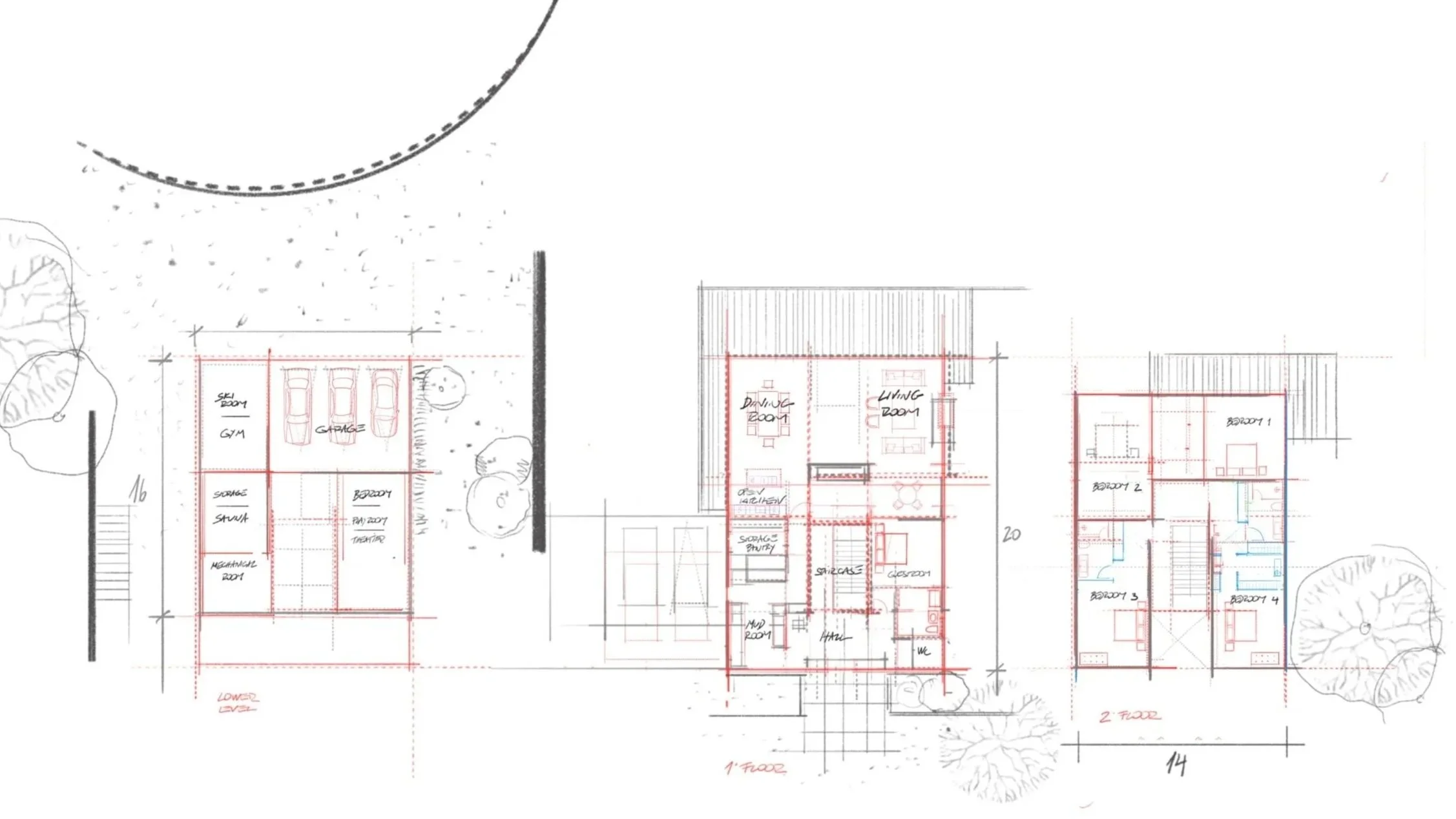
PROSPECTIVE PROJECT IN VT
MASTER PLANNING